First Floor Suite, North Wing, Link House

property photos property photos property photos property photos property photos property photos

Description

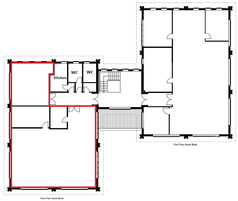
Link House is a detached office building within a 0.65 acre site including car park, surrounded by trees. The building comprises two storeys split into north and south wings with communal central core/entrance. The suite is located on the first floor and comprises a largely open plan main office area with private office and server/store room. In addition is an adjacent smaller office/meeting room. Next to the office is the communal kitchen and WCs. The suite benefits from 6 x allocated parking spaces. It is understood permits can be obtained from the Lysses car park nearby.

Location

The property is conveniently located in the centre of Fareham on the High Street, providing excellent nearby amenities including those within the nearby pedestrianised West Street and Fareham Shopping Centre. The property is highly accessible by public transport with nearby train and bus stations. In addition access by road is extremely convenient given proximity to A27 as well as M27 junctions 10 and 11.
Loading Properties...

Details

Location:

First Floor Suite, North Wing, Link House 44A High Street
Fareham

Type:

Offices

Size:

1,716 - 1,716 sqft

Category:

To Let

Rent:

£23,150

Under offer:

No

Enquire

Our team are here to help...

Get in touch with our Commercial Agency Director, who will be able to assist with your enquiry.

Patrick Mattison
Patrick Mattison

BSc. (Hons) MRICS

Enquire V Card
Back to search